



























































Ross & Connel are delighted to present this most impressive, traditional detached villa to the market — a substantial family home offering exceptional space, character, and versatility, all within easy reach of the City Centre.
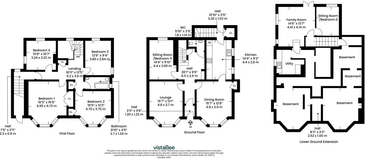
The accommodation is arranged over three levels and provides an outstanding degree of flexibility to suit a wide range of family needs, including those seeking dedicated work-from-home space. Ground Floor - Entrance vestibule, Welcoming reception hall, WC, Generous lounge, Elegant dining room, Newly installed contemporary kitchen,Sitting room/Bedroom 5. First Floor - Spacious landing, 4 double bedrooms, Family bathroom with shower. Basement Level - Family room with French doors opening to the garden, Sitting room/Bedroom 6, Utility room. Extremely large basement area. EPC - C. Council tax - F. Size- 198 Square Metres. Freehold.
This is a truly exceptional family home, combining traditional charm with modern comfort, and offering remarkable adaptability for a variety of lifestyles and family arrangements.
INCLUSIONS
All the good quality fitted carpets and blinds are included in the sale price.
VIEWING
Tel: 01383 281725